MONOLOCALE IN VENDITA IN ZONA PONTI
€ 99.000BORGHETTO SANTO SPIRITO | Zona Ponti
1 locali | 35 mq | 1 bagni | Classe G


BORGHETTO SANTO SPIRITO | Via Montevideo, 2
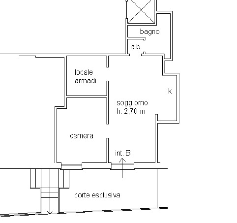
TRILOCALE A 70 METRI DAL MARE: ZONA CONFINE LOANO Borghetto S. Spirito - Ci troviamo in via Montevideo, al confine esatto con Loano e ad appena 70 metri dal mare, all'interno di un appartamento trilocale con ingresso indipendente. Una posizione privilegiata che consente di vivere il mare ogni giorno, senza l’utilizzo dell’auto, con tutti i servizi e la vivace passeggiata di Loano facilmente raggiungibili a piedi. L’appartamento, di circa 50 mq, accoglie con un ingresso diretto nel soggiorno, da cui si raggiungono la camera matrimoniale e un vano aggiuntivo da utilizzare come "jolly", attualmente utilizzato come seconda cameretta con letto a castello. La distribuzione interna è studiata per ottimizzare al meglio gli spazi, senza corridoi o disimpegni. Il bagno è dotato di doccia e l’immobile si presenta in buone condizioni interne, pronto per essere utilizzato fin da subito come casa vacanze o come investimento immobiliare nella Riviera Ligure. Completa la proprietà un balcone vivibile collegato al soggiorno. La vera forza di questa proposta è senza dubbio la posizione straordinariamente vicina al mare: uscire di casa e raggiungere la spiaggia in pochi istanti rappresenta un vero e proprio privilegio. Una soluzione ideale per chi è alla ricerca di un appartamento vicino al mare a Borghetto Santo Spirito, perfetto come casa vacanze a due passi da Loano o come investimento in una delle località più apprezzate della Riviera di Ponente. PERCHE' SCEGLIERLO? 1. Vicinanza al mare: 70 metri 2. Comodità a Loano 3. Buone condizioni interne 4. Ingresso indipendente
Tipologia: Appartamento
Piano: T di 8
Locali: 3
Superficie: 50 mq
N. Bagni: 1
Classe Energetica: G
Riscaldamento: Centr.Metano
Spese Condominiali: 464€/anno

Sofia Di Salvo

BORGHETTO SANTO SPIRITO
BORGHETTO SANTO SPIRITO | Zona Ponti
1 locali | 35 mq | 1 bagni | Classe G
BORGHETTO SANTO SPIRITO | Confine con Loano
3 locali | 47 mq | 1 bagni | Classe G
BORGHETTO SANTO SPIRITO | Borghetto Santo Spirito
2 locali | 50 mq | 1 bagni | Classe G
Siamo qui per aiutarti a trovare la casa perfetta per te.