MONOLOCALE IN VENDITA IN ZONA PONTI
€ 99.000BORGHETTO SANTO SPIRITO | Zona Ponti
1 locali | 35 mq | 1 bagni | Classe G


BORGHETTO SANTO SPIRITO | Piazza Indipendenza, 8/1
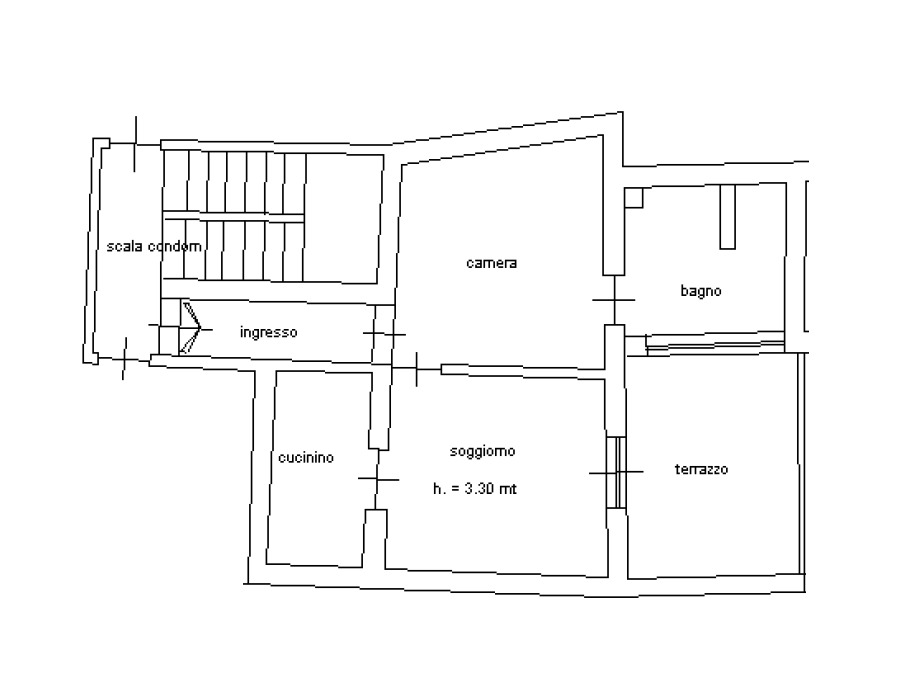
APPARTAMENTO A 150 MT DAL MARE SENZA SPESE DI GESTIONE Borghetto S. Spirito - Ci troviamo nel cuore di Piazza Indipendenza, a soli 150 metri dalla spiaggia all'interno di un appartamento di 46 mq, che conquista per la sua posizione privilegiata e per quell’atmosfera autentica che solo gli immobili vicini al mare sanno offrire. Inserito in una piccola palazzina appena fuori dal centro storico del paese, l’appartamento rappresenta una soluzione ideale per chi desidera un rifugio al mare pratico, accogliente e pronto da vivere. Uno dei suoi aspetti più interessanti è senza dubbio l’assenza di spese di gestione e il riscaldamento autonomo a pompe di calore, un valore raro e prezioso che rende questa proposta ancora più interessante, sia come casa vacanze sia come investimento. Gli interni presentano una distribuzione particolare, che dona carattere e personalità all’abitazione: l’ingresso si apre su un disimpegno che conduce immediatamente alla zona dedicata alla camera matrimoniale, lasciando il soggiorno in diretto dialogo con l’esterno. Ed è proprio qui che la casa rivela il suo lato più piacevole: un terrazzino vivibile affacciato sulla zona giorno, uno spazio intimo da abitare in ogni momento della giornata, perfetto per una colazione lenta, per leggere un libro al rientro dalla spiaggia o per concedersi una cena d’estate con il profumo del mare nell’aria. Acquistare un appartamento a Borghetto Santo Spirito vicino al mare significa scegliere la comodità di una vita scandita da ritmi più dolci, con la spiaggia raggiungibile a piedi e tutti i servizi a portata di mano. Questo bilocale con terrazzino è una proposta che unisce posizione, fascino e praticità, pensata per chi cerca una casa al mare in vendita a Borghetto Santo Spirito capace di emozionare fin dal primo sguardo. Una casa da immaginare vissuta, prima ancora che visitata. Stai cercando un appartamento in posizione centrale e comodissima al mare? Contattaci per ricevere informazioni in anteprima su questo appartamento privo di spese di gestione! PERCHE' SCEGLIERLO? 1. Vicinanza al mare: 150 metri 2. Terrazzino 3. Assenza di spese di gestione 4. Riscaldamento autonomo 5. Comodità ai servizi
Tipologia: Appartamento
Piano: 1 di 2
Locali: 2
Superficie: 46 mq
N. Bagni: 1
Classe Energetica: G
Riscaldamento: Autonomo Pompa di calore

Sofia Di Salvo

BORGHETTO SANTO SPIRITO
BORGHETTO SANTO SPIRITO | Zona Ponti
1 locali | 35 mq | 1 bagni | Classe G
BORGHETTO SANTO SPIRITO | Confine con Loano
3 locali | 47 mq | 1 bagni | Classe G
BORGHETTO SANTO SPIRITO | Borghetto Santo Spirito
2 locali | 50 mq | 1 bagni | Classe G
Siamo qui per aiutarti a trovare la casa perfetta per te.